Mieten
Mehr zeigen
10 ergebnisse gefunden für

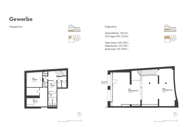
Gewerbe mieten: Riehen ort